+7 (4812) 30-30-40
Каталог
Керамогранит
Керамическая плитка
Мозаика
Обои
Раковины
Смесители и аксессуары
Душевые ограждения
Унитазы
Подвесные зеркала для ванной
Мебель для ванной
Каталоги PDF
Акции
Блог
О компании
Немного о нас
Как оформить заказ
Оплата
Доставка
Возврат
Контакты
Поиск
0
Список пожеланий
Список желаний пуст
Просмотреть список пожеланий
0
Список сравнения
Список сравнения пуст
Просмотр списка сравнения
0 ₽
0
Список покупок пуст
Группа
Биде
Душевые ограждения
Душевые системы
Зеркала
Мебель для ванных комнат
Раковины
Смесители
Столешницы из керамогранита
Унитазы
Коллекция
Amaremare
Buongiorno
Canaletto
Geometrica
ICONICO
LINDO
Magia di Venezia
MIO
MODULA
Morocco
Plaza
Pompei
PRO
SFERA
Tecnologica
Vetro
Комплектующие
Смесители KERAMA MARAZZI
Серия
Buongiorno
Canaletto
CARAVAN
Circo
Conchiglia
Cono
Cristallo
Cubo
ETERNA
Fioretto
FONTE
Futura
GRANDE
ICONICO
Lato
LINDO
Linea
Logica
LOGICA M
MAGICA
MIO
MODULA
NOTA
Ole
Piano
Piano (Смесители)
Piano Classic
PIANO FORTE
Piano Next
Plaza
Plaza Modern
Pompei
PRO
RIVA
Sabbia
SAFI
SFERA
SIARA
Sonata
Tecno
Tecnologica M
Vento
VETRATA
Vetro
XPRO
Душевые лотки
Комплектующие
Специфика
Аксессуары для душевых кабин
Аксессуары для мебели
Аксессуары для раковин
Бачки
Внутренние части
Встраиваемые раковины
Встраиваемые смесители
Гигиенические души
Донные клапаны
Душевые боковые панели
Душевые гарнитуры
Душевые двери
Душевые лейки
Душевые лотки
Душевые перегородки
Душевые стойки
Душевые уголки
Зеркала
Инсталляции для унитаза
Кнопки управления
Крепежи
Мебельные раковины
Накладные раковины
Напольные унитазы
Настенные изливы
Пеналы
Подвесные раковины
Подвесные унитазы
Профили
Пьедесталы
Сиденья
Сифоны для раковины
Смесители для биде
Смесители для ванны
Смесители для душа
Смесители для раковины
Структуры
Тумбы
Шторки на ванну
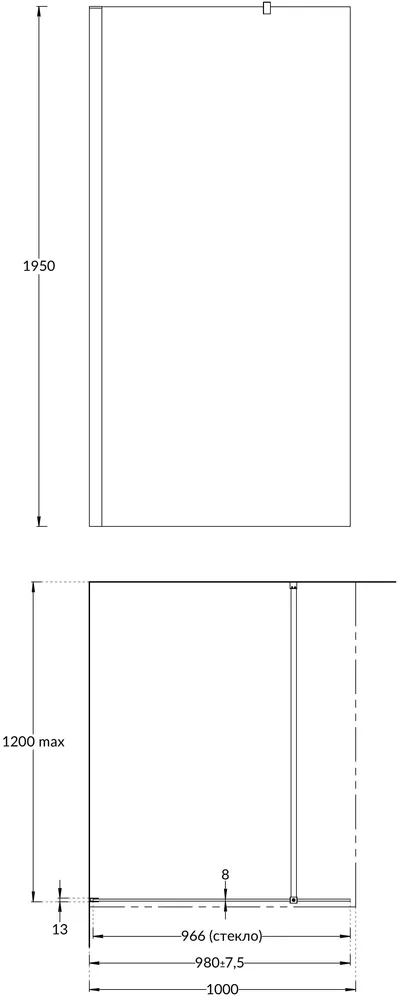
Душевая перегородка VETRO, 100х195, хром
Стоимость
27'674 ₽
Цена:
27'674 ₽/шт
Артикул: VE.100.WI.CR
Производитель:
KERAMA MARAZZI
Артикул:
VE.100.WI.CR
экз. :
Добавить к покупке
Характеристики
Основные
Группа
Душевые ограждения
Специфика
Душевые перегородки
Коллекция
Vetro
Серия
Vetro
Powered by
Phoca Cart
Плитка, керамогранит и мозаика
Сантехника, мебель, смесители
Обои